Une opportunité rare à saisir ! Ce pavillon T4 duplex (ou maison de ville) est une perle rare sur le marché bordelais, idéal pour les familles à la recherche d’un mode de vie urbain avec l’intimité d’une maison.
Un espace de vie unique et lumineux
-
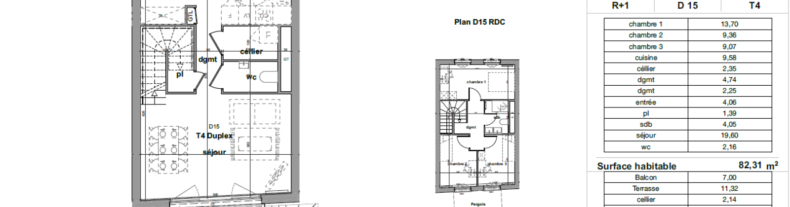
Rez-de-chaussée :
-
Séjour spacieux avec cuisine ouverte, parfait pour les moments conviviaux.
- Cellier
-
Entrée avec accès depuis la terrasse
-
WC séparés pour plus de praticité.
-
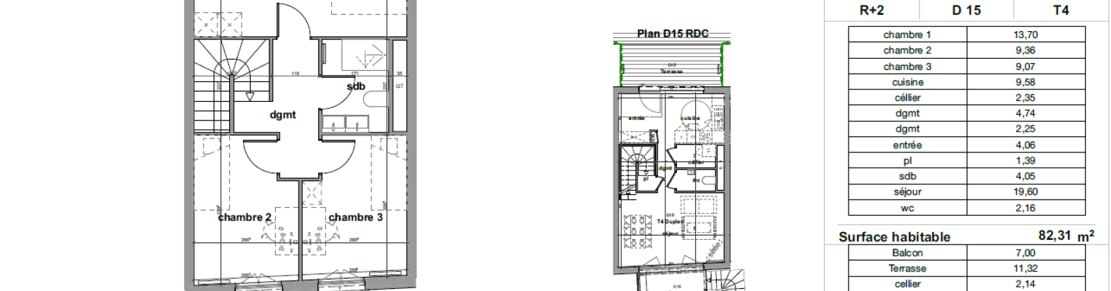
Étage :
-
Trois chambres dont une, situé au Nord pouvant accueillir un espace bureau, coiffeuse…etc, offrant calme, fraicheur et intimité.
-
Salle de bain familiale moderne et fonctionnelle.
-
Possibilité de dressing ou espace rangement supplémentaire.
Un cadre de vie urbain et familial
-
À proximité immédiate des écoles, commerces et transports, pour un quotidien facilité (au pied u tram, arrêt Carle Vernet).
-
Quartier Saint-Jean Belcier, en pleine mutation, où se conjuguent modernité et authenticité bordelaise.
-
Jardin, terrasse et balcon privatifs et parking inclus pour votre confort et votre tranquillité.
Une offre rare à Bordeaux
Ce pavillon T4 duplex (ou maison de ville) est une exception sur le marché bordelais, où ce type de bien est particulièrement recherché par les familles. Profitez d’un mode de vie urbain, avec tout le confort d’une maison individuelle, au cœur d’une résidence moderne et sécurisée.
Un bien rare, pensé pour les familles, à deux pas de tout ce qui fait le charme de Bordeaux.
Un projet de vie urbain unique à saisir sans attendre
> Vous souhaitez en voir plus ? N’hésitez pas à regarder la visite virtuelle de l’appartement et la visite virtuelle extérieur.

Nouvelle Voie. Programme de 21 appartements et 7 maisons duplex. Située à Bordeaux, à proximité de la promenade des Forges, au pied du tram C (arrêt Carle Vernet), la résidence fait partie d’un ensemble immobilier regroupant de l’accession libre, une salle polyvalente pour les séniors et d’une résidence service étudiante.
Livraison 2ème semestre 2026.