Maison évolutive T4 - Nérigean (n°18)

67.20 m² - Route de la Souloire, NERIGEAN, France 33750

Description de la propriété

Au coeur de la nature généreuse de l’Entre-deux-Mers, Nérigean offre un cadre de vie équilibré, empreint d’une douceur rare et préservée. Entouré de vignes et d’espaces boisés, le village profite d’un paisible décor champêtre.

Un nouvel art de vivre proche de tout.           
À seulement 20 minutes de la rocade bordelaise et 15 minutes de Libourne, Nérigean tire profit de l’attractivité de ces villes, tout en restant préservé de leur effervescence.
Authentique et équipé d’une école pleine d’attraits, Nérigean séduit les familles en quête d’une vie plus sereine sans faire l’impasse des commodités.
Proche de tout, le village s’entoure de communes et villes dont les commerces et services garantissent un quotidien des plus pratiques. Nérigean bénéficie en outre d’une bonne desserte avec 6 allers-retours quotidiens et gratuits en bus vers le Libournais, les lignes 401 vers Bordeaux et 386 vers
Libourne du réseau Transgironde. 

? Une maison pensée pour aujourd’hui… et demain

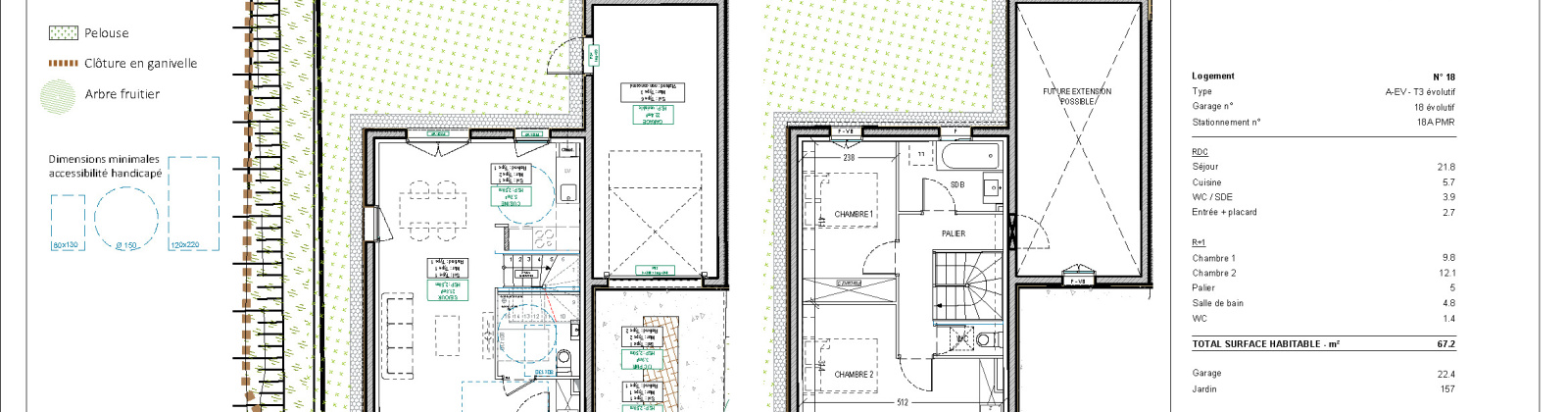
Avec environ 67 m² habitables, cette maison offre un espace de vie lumineux, une cuisine ouverte à personnaliser, 2 chambres à l’étage, ainsi qu’une salle de bains et des WC à chaque niveau.

Mais ce qui la distingue, c’est son garage en double hauteur, laissant la possibilité d’une évolution future selon vos besoins :

  • Création d’un bureau ou atelier indépendant

  • Aménagement d’un espace de télétravail

  • Rangement optimisé ou mezzanine pour espace de jeux ou couchage d’appoint

Une belle opportunité d’adapter votre logement au fil du temps, sans déménager.

? À l’extérieur :

  • Jardin privatif

  • garage
  • Stationnement inclus

  • Cadre calme et naturel, dans un environnement verdoyant

✅ Accession en Bail Réel Solidaire (BRS)

Avec le BRS, vous achetez uniquement le bâti (le logement), tandis que le foncier reste propriété d’un Organisme de Foncier Solidaire (OFS), ce qui permet de proposer des prix d’achat très inférieurs au marché. Une solution responsable, durable et sécurisée pour devenir propriétaire.

Description
Type de propriété : Maison
Type d'annonces : Maison
ID de l\'annonce : 1823
Prix : 160.000 €
Chambres : 2
Salle de bain : 2
Surface : 67.20 m²
Année de construction : 2025
Superficie Terrasse : 0 m²
Aménagements
Garden
Parking : 2
Emplacement
Pays : VEN
Ville : NERIGEAN
Code postal : 33750
Rue : Route de la Souloire
Etage : 2
Longitude : W1° 42' 1.2''
Latitude : N44° 50' 38.6''
Voisinage
Centre Ville
Maison Maison
  • ID de l\'annonce : 1823
  • Chambres : 2
  • Salle de bain : 2
  • Surface : 67.20 m²
160.000 €
Votre conseiller
Contactez-nous
Sélecteur de style
Sélectionnez la mise en page
Choisissez le thème
Couleurs prédéfinies
Pas de préréglage
Sélectionnez le motif