Maison évolutive T4 - Nérigean (n°1)

87.20 m² - Route de la Souloire, NERIGEAN, France 33750

Description de la propriété

Au coeur de la nature généreuse de l’Entre-deux-Mers, Nérigean offre un cadre de vie équilibré, empreint d’une douceur rare et préservée. Entouré de vignes et d’espaces boisés, le village profite d’un paisible décor champêtre.

Un nouvel art de vivre proche de tout.           
À seulement 20 minutes de la rocade bordelaise et 15 minutes de Libourne, Nérigean tire profit de l’attractivité de ces villes, tout en restant préservé de leur effervescence.
Authentique et équipé d’une école pleine d’attraits, Nérigean séduit les familles en quête d’une vie plus sereine sans faire l’impasse des commodités.
Proche de tout, le village s’entoure de communes et villes dont les commerces et services garantissent un quotidien des plus pratiques. Nérigean bénéficie en outre d’une bonne desserte avec 6 allers-retours quotidiens et gratuits en bus vers le Libournais, les lignes 401 vers Bordeaux et 386 vers
Libourne du réseau Transgironde. Toujours plus connecté, le village sera équipé de la fibre dès 2021.

Un bonheur à votre image !
Au coeur du village, Le COL a imaginé avec la Mairie, Faire-Ville et tous les acteurs, un projet dont l’architecture s’intègre en parfaite harmonie dans son environnement.
Faisant écho à l’atmosphère chaleureuse de Nérigean, le futur centre-bourg se déploie harmonieusement autour de la place centrale. Dans un ensemble équilibré, habitat, végétation et espaces partagés s’organisent à la perfection pour allier zones de rencontre et lieux plus
intimes. Un jardin potager partagé et une salle commune de 68 m2 viennent compléter les équipements existants, promettant des moments conviviaux entre voisins !
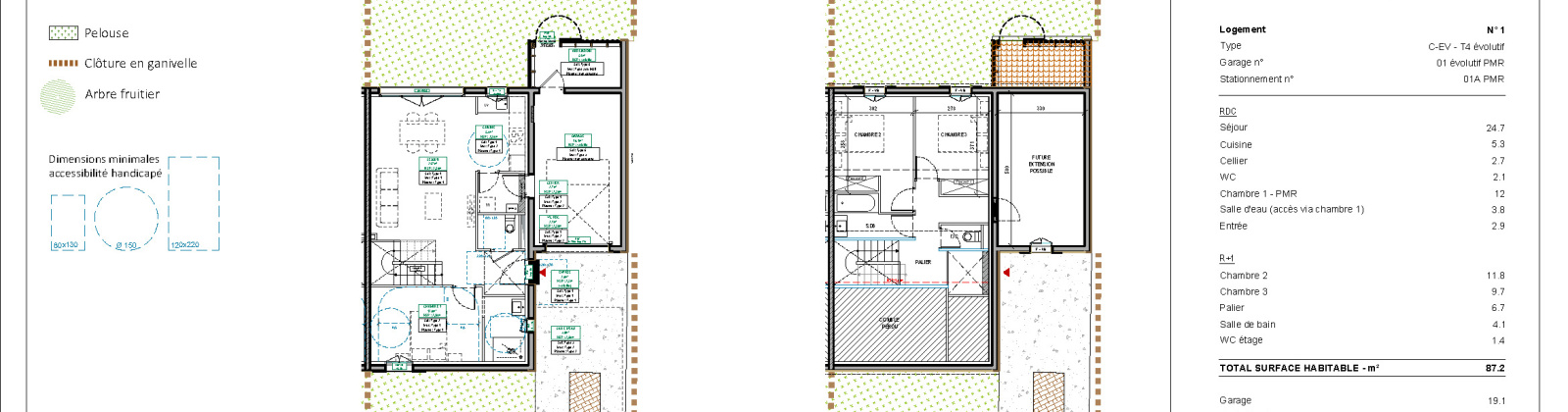
De 3 à 5 pièces, chaque maison dispose d’un étage et d’un jardin privatif avec un ou deux stationnements (garage et/ou place de midi). Selon le concept de l’habitat participatif, concevez l’aménagement intérieur qui vous correspond, selon vos besoins.
Pour le reste, le projet offre une grande latitude aux futurs habitants. Un local partagé pour du bricolage, une chambre pour recevoir vos amis et votre famille, un système de récupérateur d’eau… Définissez avec vos futurs voisins les caractéristiques et les usages de
votre lieu de vie !

Description
Type de propriété : Maison
Type d'annonces : Maison
ID de l\'annonce : 1810
Prix : 213.500 €
Chambres : 3
Salle de bain : 2
Surface : 87.20 m²
Année de construction : 2025
Superficie Terrasse : 0 m²
Aménagements
Garden
Parking : 1
Emplacement
Pays : VEN
Ville : NERIGEAN
Code postal : 33750
Rue : Route de la Souloire
Nom du bâtiment : Le Bourg
Etage : 2
Longitude : W1° 42' 1.2''
Latitude : N44° 50' 38.6''
Voisinage
Centre Ville
Maison Maison
  • ID de l\'annonce : 1810
  • Chambres : 3
  • Salle de bain : 2
  • Surface : 87.20 m²
213.500 €
Votre conseiller
Contactez-nous
Sélecteur de style
Sélectionnez la mise en page
Choisissez le thème
Couleurs prédéfinies
Pas de préréglage
Sélectionnez le motif