Appartement T3 - C15

61.99 m² - Promenade des forges, BORDEAUX, France 33800

Description de la propriété

Venez vivre votre nouvelle histoire au cœur de Bordeaux, dans un appartement lumineux et élégant, pensé pour le confort des familles et des jeunes couples.

Un intérieur moderne et fonctionnel
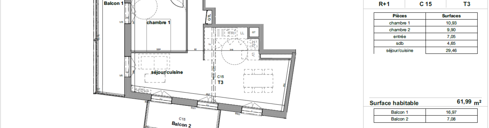
  • Séjour spacieux avec cuisine ouverte offrant un vaste espace de vie, parfait pour les moments en famille ou entre amis.

  • Large balcon ensoleillé (plus de 7 m²), prolongement idéal de la pièce de vie pour profiter des beaux jours.

  • Deux chambres bien agencées (environ 13,4 m² et 10,9 m²), avec rangements intégrés pour un quotidien organisé.

  • Salle d’eau principale et salle d’eau secondaire pour plus de praticité au quotidien.

  • Buanderie équipée et emplacements lave-vaisselle/lave-linge, pour gagner du temps et de l’espace.

Un cadre de vie dynamique et connecté

  • À proximité immédiate des écoles, commerces et transports, pour faciliter la vie de famille.

  • Quartier Saint-Jean Belcier, en pleine mutation, où se mêlent modernité et authenticité bordelaise.

  • Résidence sécurisée et moderne, avec accès PMR, volets roulants, brise-soleil et prestations haut de gamme.

Le programme Nouvelle Voie, pour une vie urbaine réussie

Vivre à Nouvelle Voie, c’est profiter du meilleur de Bordeaux : dynamisme, culture, proximité et qualité de vie. Un appartement conçu pour offrir du confort, de la lumière et un accès rapide à toutes les commodités de la ville.

Découvrez votre futur chez-vous, où chaque détail a été pensé pour votre bien-être et celui de votre famille.

 

Vous souhaitez en voir plus ? N’hésitez pas à regarder la visite virtuelle de l’appartement et la visite virtuelle extérieur.

Nouvelle Voie. Programme de 21 appartements et 7 maisons duplex. Située à Bordeaux, à proximité de la promenade des Forges, au pied du tram C (arrêt Carle Vernet), la résidence fait partie d’un ensemble immobilier regroupant de l’accession libre, une salle polyvalente pour les séniors et d’une résidence service étudiante.

Livraison 2ème semestre 2026.

 
Description
Type de propriété : Appartement
Type d'annonces : Appartement
ID de l\'annonce : 1620
Prix : 213.000 €
Chambres : 2
Salle de bain : 1
Surface : 61.99 m²
Année de construction : 2024
Superficie Terrasse : 24.05 m²
Emplacement
Pays : VEN
Ville : BORDEAUX
Code postal : 33800
Rue : Promenade des forges
Nom du bâtiment : Nouvelle Voie
Etage : 0
Longitude : W1° 26' 45.6''
Latitude : N44° 49' 14.7''
Appartement Appartement
  • ID de l\'annonce : 1620
  • Chambres : 2
  • Salle de bain : 1
  • Surface : 61.99 m²
213.000 €
Télécharger les plans
Votre conseiller
Contactez-nous
Sélecteur de style
Sélectionnez la mise en page
Choisissez le thème
Couleurs prédéfinies
Pas de préréglage
Sélectionnez le motif